物件

外観

ライオンズマンション葉山マリンビュー 19,800万円 専有面積110.00㎡

物件名ライオンズマンション葉山マリンビュー
販売価格19,800万円
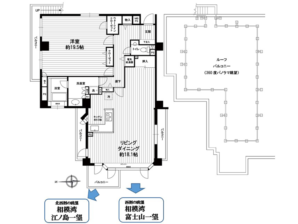
間取り1LDK+WIC
専有面積110.00㎡
バルコニー面積23.09㎡
ルーフバルコニー面積54.86㎡
所在地三浦郡葉山町一色2512-5
交通京急逗子線「逗子・葉山」駅  バス13分「芝崎」バス停 徒歩4分
JR横須賀線 「逗子」 駅バス16分「芝崎」バス停 徒歩4分
築年月日平成11年7月(1999年7月)
構造/所在階鉄筋コンクリート造6階建/5階
土地権利所有権
総戸数78戸
管理会社株式会社合人社計画研究所
管理形態日勤
管理方式全部委託
管理費18,300円(月額)
修繕積立金8,140円(月額)
その他負担金ルーフバルコニー使用料:1,100円(月額)
現況空室
引渡し即時
設備・360度パノラマ眺望が魅力の屋上ルーフバルコニー
・高温差湯式オートバス
・室内の床段差をなくしたフラットフロア
・共用部にシャワーブース・サーフボード置場
・敷地内駐車場空有 (機械式による制限あり)月額11,000円~12,000円
                 (2025年12月現在)
特徴オーシャンフロント!リビング・浴室より相模湾・富士山・江ノ島まで一望!
360度パノラマ眺望が魅力の屋上ルーフバルコニー付
ペット飼育可能(規約による制限あり)
備考写真撮影(2025年12月)
取引態様専任
更新日2025/12/25

お問い合わせ

*は必須項目です

*チェックボックス

売りたい 買いたい 借りたい 貸したい その他

*名前

メールアドレス


(確認用)

*連絡先

- -

*住所

-
都道府県

市区町村番地

マンション・ビル名

*物件名

*お問い合わせ内容

*個人情報の取扱いへの同意 同意する こちらをご確認ください