物件

外観

フェイム宮前平            2,080万円 専有面積66.05㎡

物件名フェイム宮前平
販売価格2,080万円
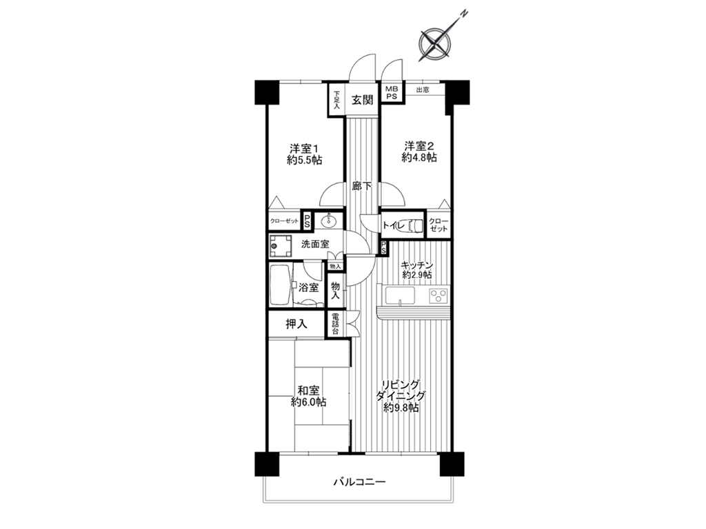
間取り3LDK
専有面積66.05㎡
バルコニー面積8.70㎡
所在地川崎市宮前区平2丁目19-53
交通田園都市線・大井町線「溝の口」駅 バス12分
「川崎西部地域療育センター前」停 徒歩4分
JR南部線「武蔵溝ノ口」駅 バス12分
「川崎西部地域療育センター前」停 徒歩4分
小田急線「向ケ丘遊園」駅  バス12分
「川崎西部地域療育センター前」停 徒歩4分
築年月日1995年7月 (平成7年7月)
構造/所在階鉄筋コンクリート造5階建/3階
土地権利所有権
総戸数34戸
管理会社株式会社エヌシーエス
管理形態全部委託
管理方式日勤
管理費11,200円(月額)
修繕積立金23,380円(月額)
現況居住中
引渡し相談
特徴◆3駅4路線利用可能!
◆南東向き住戸のため陽当り良好!
・全居室収納有
・カウンターキッチン
・床下収納有
・オートロック
・外壁タイル貼り
・閑静な住宅街

★生田緑地とは
広大な都市計画公園で丘陵地の地形と里山の自然を活かした公園です。
敷地内には
川崎市藤子・F・不二雄ミュージアム
川崎市岡本太郎美術館
かわさき宙(そら)と緑の科学館
のほか桜をはじめとした自然豊かな植物園や文化施設等がございます。

3駅4路線利用可!
①田園都市線・大井町線
「溝の口」駅 バス12分
「川崎西部地域療育センター前」停 徒歩4分
②JR南部線
「武蔵溝ノ口」駅 バス12分
「川崎西部地域療育センター前」停 徒歩4分
③小田急線
 「向ケ丘遊園」駅  バス12分
「川崎西部地域療育センター前」停 徒歩4分
備考写真撮影(2026年4月)
取引態様専任
更新日2026/04/04

お問い合わせ

*は必須項目です

*チェックボックス

売りたい 買いたい 借りたい 貸したい その他

*名前

メールアドレス


(確認用)

*連絡先

- -

*住所

-
都道府県

市区町村番地

マンション・ビル名

*物件名

*お問い合わせ内容

*個人情報の取扱いへの同意 同意する こちらをご確認ください